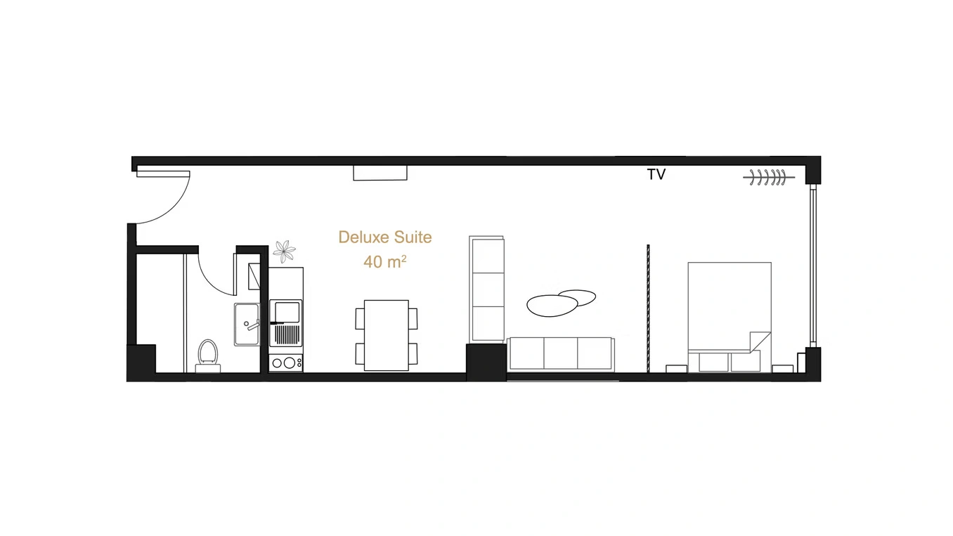
Boho Central Suites – Deluxe

Spacious, stylish suite with soft tones and a relaxed vibe — a modern stay just steps from the train, metro, and city center.

Amenities

Check more rooms from the same property

Scroll to Top