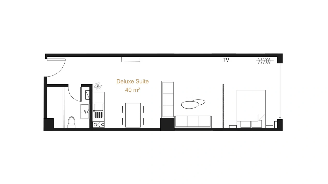
Boho Central Suites – Junior 4

Cozy and modern suite with a clean design and natural light — perfectly located near the train, metro, and central city spots.

Amenities

Check more rooms from the same property

Scroll to Top